Camere da letto: 2Bagni: 2mq: 80
Appartamento
Per favore inserisci il tuo nome utente o l'indirizzo email. Riceverai un link per creare una nuova password via email.
DEVI ENTRARE E FORSE SOLO PITTARE …
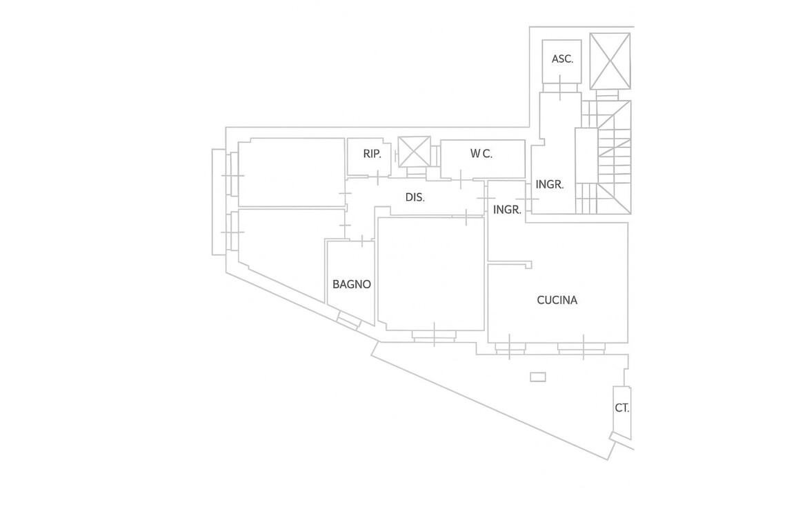
In zona Via Gravina, in uno stabile elegante del 2017 e dotato di ottima classe energetica — perfetta per accedere ai vantaggi del mutuo green — proponiamo in vendita un appartamento di 102 mq che unisce stile contemporaneo, comfort avanzato e ambienti luminosi pensati per una vita quotidiana di qualità. L’ingresso conduce a un’ampia zona living open-space con cucina a vista e area pranzo estremamente accogliente, affacciata su una verandina abitabile ideale per colazioni all’aperto o momenti di relax. La zona notte comprende tre camere da letto ben distribuite e due bagni moderni, rifiniti con materiali di alto livello.
Tra le dotazioni principali spiccano il riscaldamento a pavimento e il raffrescamento canalizzato, soluzioni che garantiscono un benessere costante in ogni stagione. La cucina su misura, realizzata con gusto e materiali di qualità, puo’ essere acquistata con un costo a parte. Su richiesta, è possibile acquistare l’immobile anche completamente arredato, con un supplemento concordabile, per chi desidera una soluzione pronta da abitare fin da subito. Completa la proprietà un comodo garage al piano interrato.
Un appartamento efficiente, moderno e curato in ogni dettaglio, perfetto per chi cerca una casa funzionale, elegante e con costi di gestione ridotti. Disponibilità da concordare in trattativa.
Riferimento: BARONE003594
Aggiornato su Marzo 11, 2026 a 3:28 am
| Cookie | Durata | Descrizione |
|---|---|---|
| cookielawinfo-checkbox-analytics | 11 months | This cookie is set by GDPR Cookie Consent plugin. The cookie is used to store the user consent for the cookies in the category "Analytics". |
| cookielawinfo-checkbox-functional | 11 months | The cookie is set by GDPR cookie consent to record the user consent for the cookies in the category "Functional". |
| cookielawinfo-checkbox-necessary | 11 months | This cookie is set by GDPR Cookie Consent plugin. The cookies is used to store the user consent for the cookies in the category "Necessary". |
| cookielawinfo-checkbox-others | 11 months | This cookie is set by GDPR Cookie Consent plugin. The cookie is used to store the user consent for the cookies in the category "Other. |
| cookielawinfo-checkbox-performance | 11 months | This cookie is set by GDPR Cookie Consent plugin. The cookie is used to store the user consent for the cookies in the category "Performance". |
| viewed_cookie_policy | 11 months | The cookie is set by the GDPR Cookie Consent plugin and is used to store whether or not user has consented to the use of cookies. It does not store any personal data. |