Camere da letto: 2Bagno: 1mq: 130
Appartamento
Per favore inserisci il tuo nome utente o l'indirizzo email. Riceverai un link per creare una nuova password via email.
In vendita ad Altamura, nella centralissima zona di Viale Martiri, proponiamo un appartamento al piano terra in elegante complesso residenziale.
Un’occasione reale e concreta: la casa viene ceduta completamente arredata, con tutto ciò che vedi già incluso nel prezzo. Nessuna spesa aggiuntiva, nessun pensiero, nessun rinvio: entri e la vivi da subito.
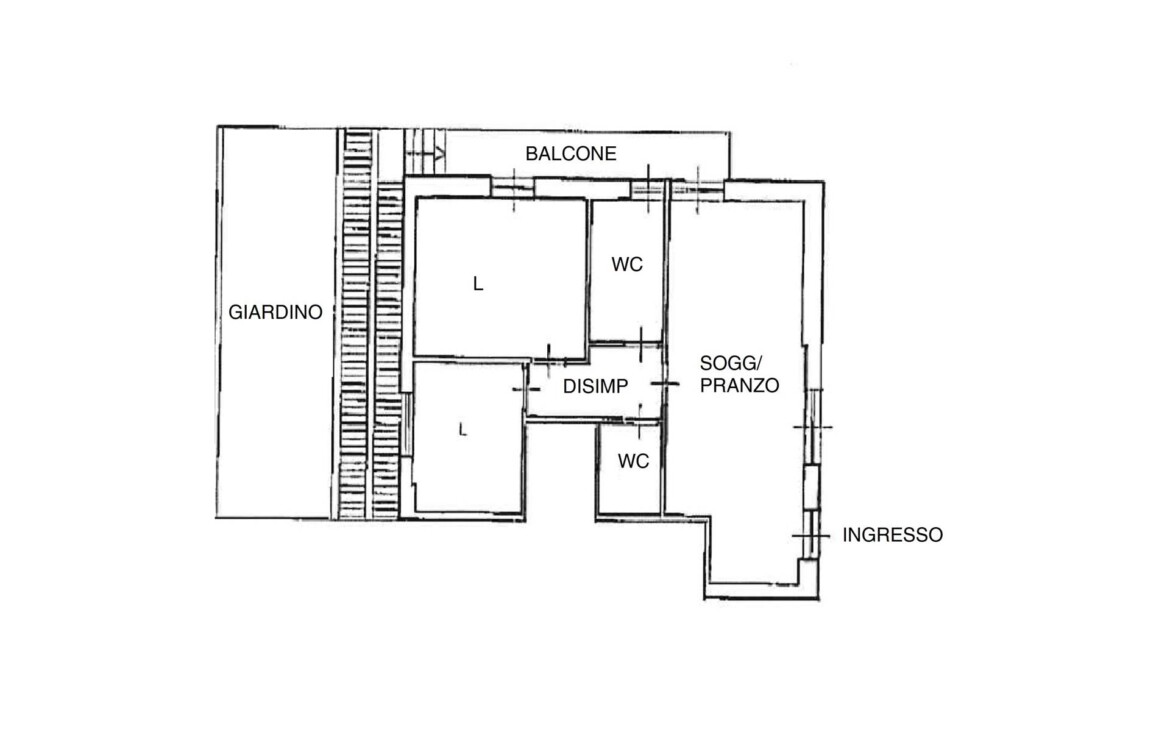
Gli spazi interni sono organizzati in modo pratico e funzionale:
soggiorno luminoso con cucina a vista e accesso al balcone,
camera matrimoniale di generose dimensioni,
cameretta comoda e versatile,
due bagni completi, già pronti e funzionanti.
Il vero valore aggiunto però è lo spazio esterno privato.
Parliamo di un giardinetto intimo e riservato, uno spazio che in centro città è quasi impossibile da trovare. Un angolo esclusivo, che puoi personalizzare e rendere unico: puoi abbellirlo con piante, fiori, arredamento da esterno, creando così un ambiente perfetto per rilassarti, leggere, cenare all’aperto o semplicemente goderti la tranquillità senza dover uscire di casa.
In una posizione così centrale, avere uno spazio verde privato significa differenziarsi da tutto il resto del mercato immobiliare. È un privilegio raro e ricercatissimo.
A completare l’offerta, vi è la possibilità di acquistare un garage nello stesso stabile (con costo a parte di euro 33.000): un’opzione comoda e utile, ma non obbligatoria, così ognuno può decidere in base alle proprie esigenze.
Perché scegliere questo appartamento:
È centrale, in una delle zone più servite e richieste della città.
È completamente arredato, pronto per essere abitato.
Ha uno spazio esterno privato che pochi possono vantare.
È un investimento sicuro, sia come abitazione principale che come futura rendita.
Questa casa è diversa dalle altre. È pronta, è completa, è immediatamente vivibile e ha quel giardinetto che fa davvero la differenza.
Non rimandare: chiamaci subito per fissare un appuntamento perchè questo immobile non restera’ a lungo sul mercato.
Riferimento: BARONE003572
Aggiornato su Marzo 11, 2026 a 3:32 am
Camere da letto: 2Bagni: 2mq: 145
Appartamento
Camere da letto: 2Bagni: 2mq: 145
Appartamento
Camere da letto: 2Bagni: 2mq: 85
Appartamento
Camere da letto: 2Bagni: 2mq: 85
Appartamento
Camere da letto: 2Bagni: 2mq: 120
Appartamento
Camere da letto: 2Bagni: 2mq: 120
Appartamento
| Cookie | Durata | Descrizione |
|---|---|---|
| cookielawinfo-checkbox-analytics | 11 months | This cookie is set by GDPR Cookie Consent plugin. The cookie is used to store the user consent for the cookies in the category "Analytics". |
| cookielawinfo-checkbox-functional | 11 months | The cookie is set by GDPR cookie consent to record the user consent for the cookies in the category "Functional". |
| cookielawinfo-checkbox-necessary | 11 months | This cookie is set by GDPR Cookie Consent plugin. The cookies is used to store the user consent for the cookies in the category "Necessary". |
| cookielawinfo-checkbox-others | 11 months | This cookie is set by GDPR Cookie Consent plugin. The cookie is used to store the user consent for the cookies in the category "Other. |
| cookielawinfo-checkbox-performance | 11 months | This cookie is set by GDPR Cookie Consent plugin. The cookie is used to store the user consent for the cookies in the category "Performance". |
| viewed_cookie_policy | 11 months | The cookie is set by the GDPR Cookie Consent plugin and is used to store whether or not user has consented to the use of cookies. It does not store any personal data. |