Camere da letto: 6Bagni: 3mq: 180
Appartamento
Per favore inserisci il tuo nome utente o l'indirizzo email. Riceverai un link per creare una nuova password via email.
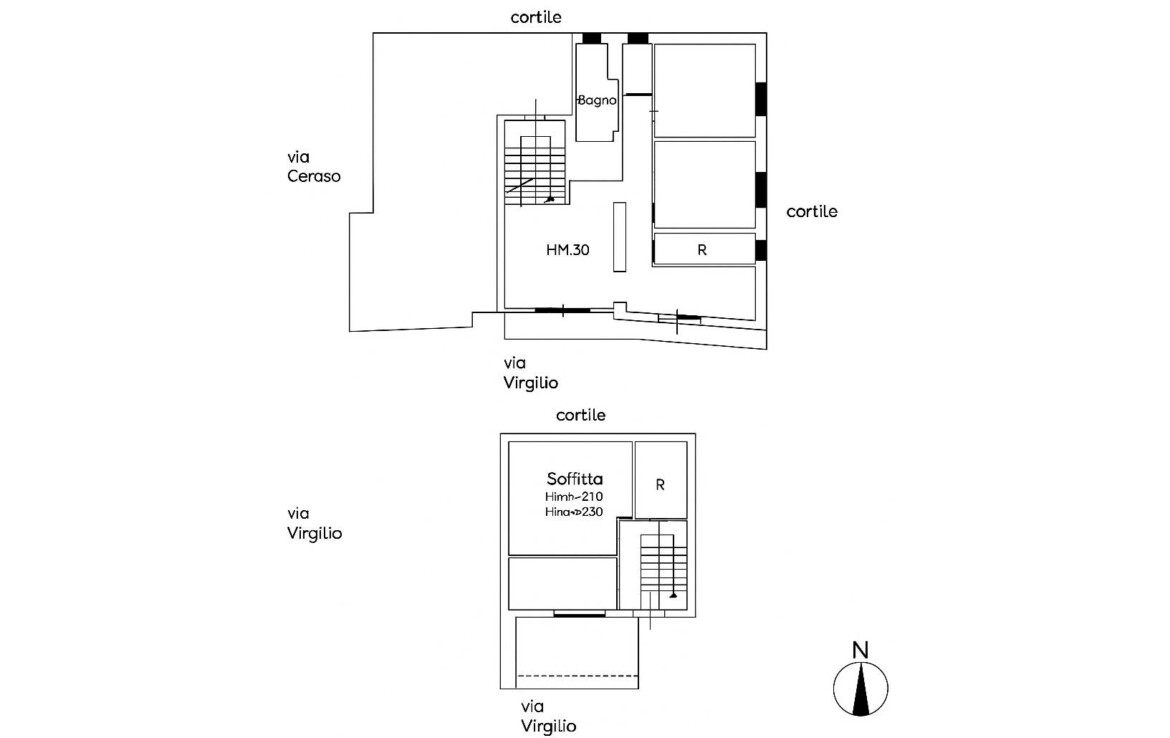
Proponiamo in vendita ampio appartamento al secondo piano di un fabbricato condominiale senza ascensore, situato in posizione strategica vicino alla stazione ferroviaria.
L’immobile, angolare e luminoso, si sviluppa su circa 115 mq e si compone di:
Ingresso in salotto relax;
Soggiorno pranzo con cucina a vista e bagno di servizio, entrambi con affaccio esterno su Via Virgilio;
Disimpegno che conduce al reparto notte, comprendente due camere da letto, ripostiglio e bagno principale.
Al terzo piano è presente una soffitta di esclusiva proprietà di circa 15 mq e un terrazzo in comune accessibile.
A completamento della proprietà, al piano terra è presente un locale garage di circa 65 mq, di cui metà destinata al posto auto pertinenziale.
Dotazioni e impianti:
Riscaldamento con stufa a pellet;
Raffrescamento con aria condizionata;
Caldaia per acqua calda;
Non è presente l’allaccio al gas.
L’appartamento rappresenta un’ottima soluzione per chi cerca spazi ampi, luminosità e una posizione comoda per i servizi e i collegamenti.
Riferimento: BARONE003577
Aggiornato su Aprile 17, 2026 a 3:34 am
Camere da letto: 3Bagni: 2mq: 120
Appartamento
Camere da letto: 3Bagni: 2mq: 120
Appartamento
Camere da letto: 3Bagni: 2mq: 200
Appartamento
Camere da letto: 3Bagni: 2mq: 200
Appartamento
| Cookie | Durata | Descrizione |
|---|---|---|
| cookielawinfo-checkbox-analytics | 11 months | This cookie is set by GDPR Cookie Consent plugin. The cookie is used to store the user consent for the cookies in the category "Analytics". |
| cookielawinfo-checkbox-functional | 11 months | The cookie is set by GDPR cookie consent to record the user consent for the cookies in the category "Functional". |
| cookielawinfo-checkbox-necessary | 11 months | This cookie is set by GDPR Cookie Consent plugin. The cookies is used to store the user consent for the cookies in the category "Necessary". |
| cookielawinfo-checkbox-others | 11 months | This cookie is set by GDPR Cookie Consent plugin. The cookie is used to store the user consent for the cookies in the category "Other. |
| cookielawinfo-checkbox-performance | 11 months | This cookie is set by GDPR Cookie Consent plugin. The cookie is used to store the user consent for the cookies in the category "Performance". |
| viewed_cookie_policy | 11 months | The cookie is set by the GDPR Cookie Consent plugin and is used to store whether or not user has consented to the use of cookies. It does not store any personal data. |